Создание системы отопления в nanoCAD BIM Вентиляция
14 ноября 2025
Олег Курков
Олег Курков
BIM-менеджер и руководитель проектов внедрения ГК «ИНФАРС»

Система отопления является одной из ключевых инженерных систем здания, от корректности ее проектирования зависят комфорт и энергоэффективность объекта. Программа nanoCAD BIM Вентиляция позволяет не только разрабатывать системы вентиляции, но и полноценно моделировать и оформлять схемы отопления, включая радиаторное и напольное отопление. В этой статье мы рассмотрим пошаговый процесс создания системы отопления: от подготовки компонентной базы до построения трубопроводных трасс, настройки соединений и оформления чертежей в среде BIM.

Создание компонентов

Для начала моделирования системы отопления необходимо подготовить базу данных компонентов.

Программный продукт nanoCAD BIM Вентиляция обеспечивает работу с экспортируемой и параметрической графикой.

Непараметрическая графика

Если у вас уже есть готовые модели радиаторов отопления, можно создать компонент и импортировать существующую графику (рис. 1) в форматах *.3ds, *.dwg, *.ifc, *.step, *.stp.

Рис. 1. Импорт статической графики

Далее следует добавить точки подключения для трубопроводов (вкладка ВентиляцияДобавить точку подключения) – (рис. 2).

Рис. 2. Создание точек подключения для оборудования

Следующим шагом необходимо задать тип оборудования, указав соединители (вкладка ВентиляцияЗадать тип оборудования) – (рис. 3).

Рис. 3. Задание типа оборудования
Параметрическая графика

Для системы вентиляции реализовано множество параметрических компонентов: воздуховоды, отводы, тройники и т.д. При создании трубы можно сделать копию любого круглого воздуховода и, изменив параметры в BIM-свойствах, превратить воздуховод в трубопровод.

Компонент воздуховода до изменения BIM-свойств показан на рис. 4, а после изменения – на рис. 5.

Рис. 4. Пример компонента воздуховода круглого сечения
Рис. 5. Труба металлопластик Ø16 х 2

Таким образом можно создать необходимые типоразмеры трубопроводов, а с применением компонентов параметрического отвода получить отводы с разными длинами изгиба, что поможет моделировать теплый пол (рис. 6).

Рис. 6. Построение трассы с различными отводами
Моделирование

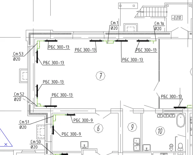
Используя результаты подготовки компонентов, необходимых для построения трасс и оборудования, можно замоделировать и оформить систему отопления и систему теплого пола (рис. 7, 8).

Рис. 7. Система отопления
Рис. 8. Фрагмент системы теплых полов
Оформление

В nanoCAD BIM Вентиляция предусмотрена возможность настройки любых выносок, что позволяет оформлять планы (рис. 9, 10).

Рис. 9. Фрагмент плана отопления
Рис. 10. План ИТП
Выводы

В программе nanoCAD BIM Вентиляция можно моделировать и оформлять планы, разрезы, изометрические виды не только систем вентиляции, но и систем отопления и кондиционирования (рис. 11). 

Рис. 11. Изометрический вид и разрезы по ИТП

Мы разобрали, как средствами программного решения nanoCAD BIM Вентиляция создавать и оформлять систему отопления. Продемонстрировали, как подготовить базу компонентов, импортировать или создать графику радиаторов и трубопроводов, задать точки подключения и типы оборудования, а также смоделировать трассы и собрать систему радиаторного и напольного отопления.

Функционал программы позволяет выполнять полный цикл проектирования инженерных систем в среде BIM: от построения модели до выпуска рабочей документации. На основе единой BIM-модели можно создавать планы, разрезы и изометрические виды систем вентиляции, отопления и кондиционирования, обеспечивая целостность модели, сокращая время оформления и повышая точность проектных решений.

Этот сайт использует cookies. Пользуясь сайтом, вы даете согласие на обработку ваших персональных данных. Подробнее