Коллизии между архитектурой и инженерными системами в модульных зданиях часто обнаруживаются слишком поздно — на производстве или стройплощадке. Задача, стоящая перед предприятием «СПЕЦ Прожект групп» (Бронезавод «АПИТ») заключалась в выявлении и устранении подобных явлений на ранних этапах реализации проектов. В представленном кейсе представлен детальный разбор, как средствами nanoCAD BIM Строительство создавалась единая BIM-модель, где каркас, панели и проемы становятся основой для бесшовной интеграции всех смежных разделов. Представлена трансформация типового чертежа формата DWG в «живую» параметрическую модель, где корректировка одного свойства автоматически обновляет все планы, разрезы и ведомости.
Предприятие «СПЕЦ Прожект групп» (Бронезавод «АПИТ»), при проектировании и производстве модульных зданий, периодически сталкивается с необходимостью решения вопросов интеграции архитектурно-конструкторских решений проектируемых модульных конструкций с существующей компоновкой инженерных систем особенно на ранних стадиях проектных работ для исключения коллизий. Ключевым требованием была скорость адаптации типовых проектов под нужды конкретного технического задания (ТЗ) и минимизация ошибок при передаче данных между смежными отделами. Для организации проведения пилотного проекта был выбран типовой блок-модуль общественного назначения габаритами 6x4,9 м. с реализацией проектирования на базе программного обеспечения nanoCAD BIM Строительство — продукт российской компании «Нанософт». Его компактность и типовая структура идеально подходит для отработки методики создания параметрических библиотечных элементов, как последующей основы для проектирования иных модульных зданий из линейки, выпускаемых предприятием.
Простота объекта позволила сконцентрироваться не на сложной геометрии, а на главном: создании гибкой, повторно используемой и легко адаптируемой BIM-модели, которая является цифровым двойником реального изделия предприятия.
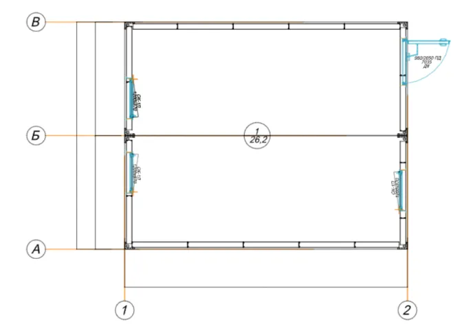
- Площадь застройки: около 29.4 кв.м.
- Этажность: 1.
- Высота потолка: 2.6 м.
Возможность выполнять различные разделы (АР, КР, СПИС) в ПО из одной линейки, гибкость настройки инструментов, возможность создания параметрической библиотеки объектов для многократного использования в будущих моделях, динамическая связь модели с документацией и ведомостями.
Основной фокус в рамках пилотного проекта был смещен с скорости выполнения на освоение полного цикла моделирования в nanoCAD BIM Строительство. Специалистами «СПЕЦ Прожект групп» (Бронезавод «АПИТ») было детально проработаны инструменты, помогающие на всех этапах работы в продукте – от базового построения сеток и уровней до редактирования элементов каркаса и параметризации собственных объектов. Это позволило не только выполнить поставленные задачи, но и обеспечить формирование устойчивых компетенции для команды предприятия. Внедрение новых программных продуктов проходило с помощью компании «ЦПО», партнера «Нанософт».
Исходными данными послужили 2D-чертежи в формате DWG, содержащие планы и фасады, а также техническое задание, акцентированное на важности бесшовной интеграции с инженерными разделами. Детализация КР на уровне отдельных узлов не требовалась, так как основным конструктивом являются готовые сэндвич-панели завода-изготовителя.


Ключевой технической задачей пилотного проекта стала адаптация типовых 2D-решений в полноценную информационную BIM-модель с обеспечением корректного сопряжения всех элементов конструкций, которая станет основой для последующего проектирования инженерных систем без коллизий.
Независимо от среды проектирования, работа всегда начинается с настройки сетки осей и уровней. При создании нового файла в пространстве nanoCAD BIM Строительство уже находится базовая сетка осей, которую можно удалить и создать новую для дальнейшей работы или же отредактировать через инструмент Параметры сетки в диалоговом окне Свойства координатной сетки.

Стоит отметить, что сетка, которая создается на этом этапе, является вспомогательным инструментом, оформление будет осуществляться с помощью модуля СПДС на этапе документирования и специфицирования.
Оси каждого направления X, Y и Z настраиваются через отдельные соответствующие диалоговые окна, в которых можно задать: метку оси, значение и приращение. Для настройки уровней доступно изменение цвета. Также в этом диалоге есть возможность настроить отображение осей в модели, проставив рядом с нужными галочки.

Моделирование каркаса модульного здания начинается с использования инструментов вкладки BIM Конструкции.
Работа с данным инструментом осуществляется через плавающий диалог, в котором можно выбрать сортамент металлопроката и задать: привязки верха и низа колонны к уровням, базовую сетку осей, ориентацию и наклон относительно вертикальной оси, точку привязки сечения, угол поворота профиля, выгибы по осям X и Y, материал, а также выбрать расчетное представление объекта.

Есть возможность задать колонну в модели путем выбора заранее построенного отрезка, для этого в диалоге необходимо отметить пункт Создать по объекту. В данном проекте стойки создавались путем клика по точке, где должен располагаться центр сечения.
При создании балок у нас есть аналогичная возможность выбрать подходящий сортамент металлопроката, настроить параметры привязки к базовому уровню, базовой сетке осей, задать ориентацию и наклон, точку привязки сечения, деформации по осям X и Y, материал и указать расчетное представление.

Для создания балки в пространстве модели у нас доступны варианты Создания по объекту или же задания начальной и конечной точки балки.
Когда конструкции каркаса модульного здания готовы, обратимся к инструментам вкладки BIM Конструкции.
В диалоге данного инструмента доступны к заданию базовый уровень, базовая сетка осей, толщина, смещение от уровня, расположение линии привязки и материал, если мы создаем однослойную конструкцию.

В рамках проекта перекрытие было выполнено многослойной конструкцией, поэтому тип материала неактивен в открытом диалоге Параметры перекрытия. Для настройки количества, материала и других параметров слоев необходимо открыть свойства уже созданного однослойного перекрытия и создать иерархию слоев, где для каждого указать необходимые параметры. В нашем случае это были наименование, толщина, идентификатор и имя материала, тип слоя.

Одной из ключевых задач для клиента была разработка библиотеки сендвич-панелей. Для этого использовался инструмент Параметрический объект, доступный с обеих вкладок BIM Конструкции или BIM Архитектура. Была создана библиотека сэндвич-панелей, где такие параметры, как длина, высота, толщина утеплителя и тип облицовки, были связаны с геометрией. Изменение любого параметра в свойствах объекта меняет размер и конфигурацию объекта в модели.
На этапе создания параметрического объекта в свойства родительского элемента были добавлены следующие параметры: марка, длина, высота и плотность.

В качестве дочерних элементов в иерархии были созданы слои сендвич-панели с параметрами ширины и идентификатором материала слоя.

Для создания самого объекта сендвич-панели на вкладке Редактора параметрического объекта создаем три 3D-примитива Параллелепипед, через Мастер функций связываем геометрию объекта с соответствующей геометрией в свойствах объекта через команду Запрос в структуру элемента.

После необходимо связать каждый элемент модели параметрического объекта с элементами, которые были заданы в иерархии окна свойств.

Для автоматического подсчета массы панелей через инструмент Расчет площади и объема 3D-объекта подсчитываем объем, а затем в свойствах задаем формулу для подсчета массы.

Для создания стенового ограждения были использованы стандартные инструменты платформы. В рамках данного проекта мы столкнулись с особенностью: вкладка BIM Архитектура позволяет создавать проёмы только в объектах категории «Стена». Чтобы разместить окна и двери в смоделированных сэндвич-панелях, мы применили простой и эффективный обходной путь:
- Поверх модели панелей на отдельном слое были построены стены с помощью соответствующего инструмента.
- В эти стены установлены все необходимые проёмы.
- После этого слой со стенами был скрыт и заморожен, оставив видимыми только корректно размещённые окна и двери в составе общей модели.
В процессе работы было удобно задавать все необходимые параметры прямо в плавающем диалоговом окне: привязку к уровням сетки, материал для однослойной конструкции, а также геометрические параметры, такие как толщина и положение.

Установка проемов стала еще одним примером гибкости инструмента. При создании каждого окна и двери мы выбирали из обширной стандартной библиотеки заполнений. Для типовых проёмов этого более чем достаточно, но продукт также позволяет при необходимости создавать и настраивать собственные, нестандартные варианты.
В диалоговом окне инструмента мы задавали все ключевые параметры: базовый уровень и сетку осей для привязки, геометрические размеры, а также детали, такие как тип и глубина четвертей. Это позволило быстро и точно разместить все проёмы в соответствии с исходными данными.

В nanoCAD BIM Строительство есть основной инструмент для управления информационной моделью – Диспетчер проекта. У него есть три режима: Модель, Информация и Марка. Режим Марка стал центральным для управления всеми марками проемов и сборок. С его помощью проектировщики могли быстро редактировать наименования, находить элемент в модели для проверки и вносить изменения в его параметры, что значительно ускоряло процесс актуализации документации.

Режим Модель был полезен для управления отображением осей и уровней в проекте, а также сохранением видов, которые будут отображаться на листах. Для сохранения вида в диспетчере проекта необходимо настроить отображение модели в пространстве. Процесс был интуитивным: после настройки нужного ракурса, визуального стиля и видимости слоёв в модели, вид сохранили одним действием.

Готовые виды простым перетаскиванием (drag-and-drop) переносились в пространство листа. Дальнейшее оформление выполнялось инструментами модуля СПДС для полного соответствия стандартам.

Главным практическим преимуществом этого подхода стала динамическая связь: любое исправление в модели автоматически обновлялось на всех связанных листах, исключая риск расхождений.
Для получения ведомостей и спецификаций есть несколько подходов – применение динамических таблиц nanoCAD и использование команд с панели Отчеты и публикация. В данном проекте был выбран первый способ.
Инструмент создания таблиц nanoCAD доступен с вкладок Главная и Оформление. После создания таблицы произвольного размера в открытом редакторе таблицы проектировщики оформили шапку таблицы, настроили фильтр для отбора из модели элементы, надлежащие учету в спецификации, настроили шаблон отчета и правила группировки и объединения строк в таблице.

В результате была получена спецификация, динамически связанная с моделью. При изменении количества или параметров любого элемента в модели соответствующие строки в таблице обновляются автоматически, что гарантирует абсолютную актуальность данных.

Основным итогом пилотного проекта стало успешное выполнение полного цикла проектных работ в nanoCAD BIM Строительство на реальном объекте. Компактность здания позволила сконцентрироваться на детальном освоении ключевых принципов работы программного продукта — от использования системных инструментов до построения параметрических элементов ограждающих конструкций и автоматизированной генерации комплекта рабочей документации.
- Отработана сквозная методология. На конкретном примере была проверена и подтверждена эффективность рабочего процесса в среде nanoCAD BIM Строительство — от создания информационной модели до получения чертежей и спецификаций;
- Создан адаптируемый цифровой прототип. Разработана библиотека параметрических элементов, готовых к многократному использованию. Это формирует основу для быстрой адаптации типовых решений под новые задачи;
- Обеспечена динамическая связь модели с документацией. Любое изменение в модели (корректировка размеров, смещение проёма, замена элемента) автоматически отражается на всех связанных видах, разрезах и спецификациях, вынесенных на листы. Этот принцип работы полностью исключил необходимость дублирования правок, повысив скорость работы и устранив классический источник ошибок — расхождение между моделью и документацией. На практике это оказалось одним из наиболее ценных преимуществ среды для проектировщиков.
Таким образом, пилотный проект стал отличной стартовой площадкой для глубокого знакомства с возможностями nanoCAD BIM Строительство. Практический опыт, полученный на этом объекте, подтвердил: инструмент полностью готов к работе над проектами любой сложности — от модульных зданий до крупных общественных и инфраструктурных объектов.
Предприятие «СПЕЦ Прожект групп» (Бронезавод «АПИТ») специализируется на проектировании, изготовлении и поставке изделий технической укрепленности и защитных сооружений для нужд государственных корпораций и банковского сектора, и является обладателем торговой марки «АПИТ», история которой начинается с 1994 г.
Авторы:
Баранов Сергей Валерьевич – начальник конструкторско-технологического отдела
Клеветов Денис Викторович – заместитель генерального директора по бизнес-планированию
ООО «СПЕЦ Прожект групп» (Бронезавод «АПИТ»)


